Bouwgrond
€ 235.000

Pastoor Binckstraat 4, 2260 Westerlo
    • delen

Omschrijving Ref.: 7561801

Bouwgrond te koop in Westerlo!


Deze aantrekkelijke vergunde bouwgrond is gelegen in Heultje, een rustige en groene deelgemeente van Westerlo, en heeft een oppervlakte van 5a 06ca. Het perceel is bestemd voor open bebouwing, ideaal voor wie vrijstaand en ruim wil wonen in een aangename omgeving.

De ligging is een absolute troef: Rustig en residentieel, maar met een vlotte verbinding naar Antwerpen, Aarschot en Hasselt. De autosnelweg is snel bereikbaar, terwijl u toch geniet van een groene woonomgeving. Bovendien bevinden scholen, winkels, sportfaciliteiten en andere voorzieningen zich in de nabije omgeving.

Belangrijkste kenmerken:

Geschikt voor open bebouwing
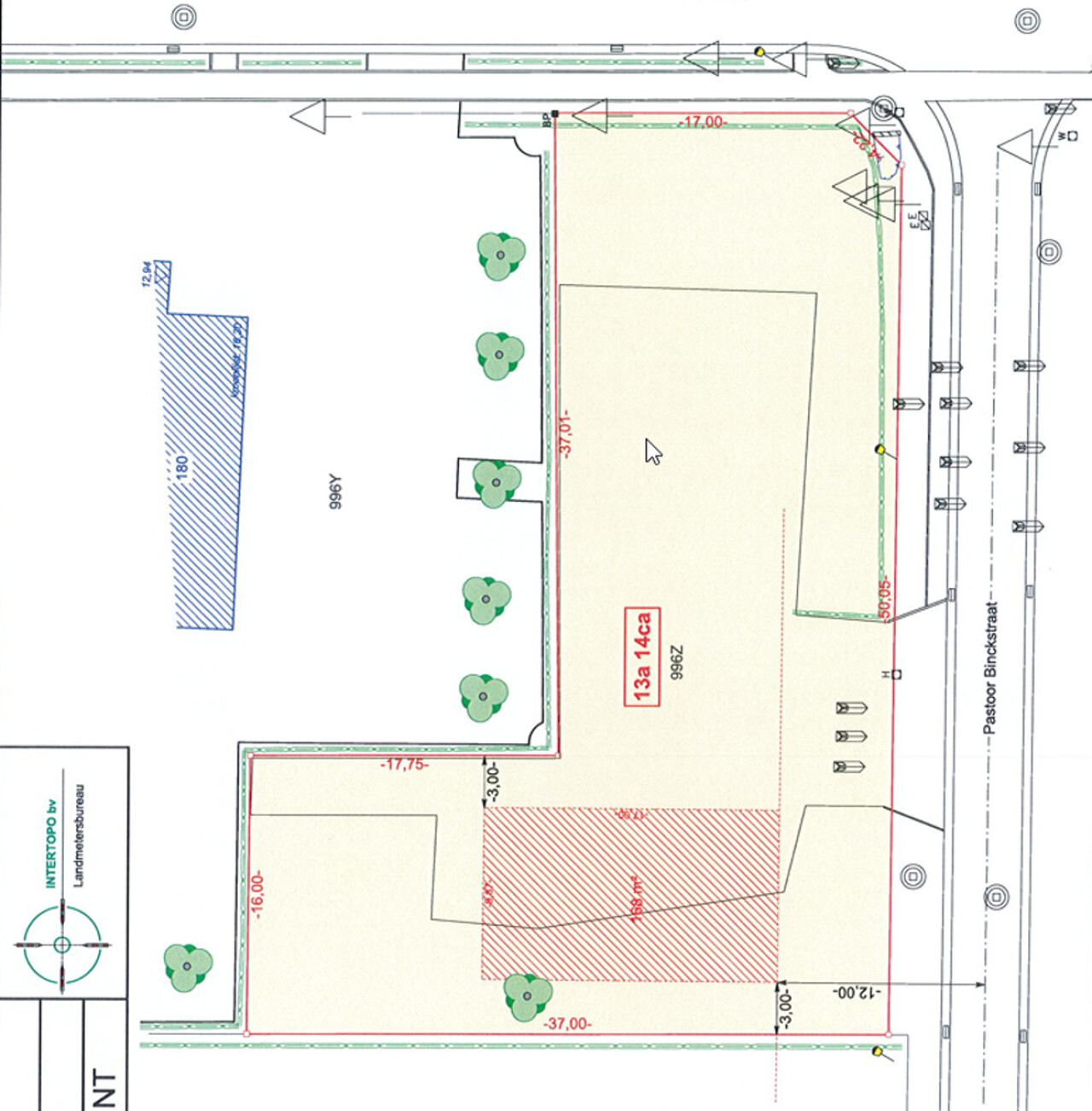
Perceeloppervlakte: 13a 14ca
Bouwbreedte: ca. 9.87 m
Bouwdiepte gelijkvloers: 17 m
Diepte grond: 37m
Vergunde verkaveling

Stedenbouwkundige info:
Woongebied – Vergunning verleend – Verkavelingsvergunning – Geen dagvaarding – Geen voorkooprecht

Een ideale bouwgrond voor wie rustig en vrijstaand wil wonen zonder in te boeten aan bereikbaarheid en comfort.

???? Bel ons op 014/95.37.50
???? Mail naar secretariaat@degroot-celen.be


Uw contact

Vragen over deze eigendom ref: 7561801
contact

Details van het pand

Financieel

Prijs
€ 235.000,00
Onder BTW stelsel
Nee

Ligging

Buurt
Landelijk, rustig
School nabij
Ja
Winkels nabij
Ja
Openbaar vervoer nabij
Ja
Autosnelweg nabij
Ja
Sportcentrum nabij
Ja

Gebouw

Staat
Uitstekend

Terrein

Grondoppervlakte
1.314,00 m²
Terreindiepte
35,80 m

Technieken

Riolering
Ja

Stedenbouw

Bestemming
Woongebied
Bouwvergunning
Nee
Verkavelingsvergunning
Ja
Voorkooprecht
Nee
Dagvaarding
Nee
G-score
A
P-score
A
Vonnissen
Nee
Servitude
Nee

Meer info over deze eigendom

Bedankt voor je bericht, we contacteren je zo spoedig mogelijk.
Er was een probleem bij het versturen van het formulier, gelieve opnieuw te proberen.
(*) Gelieve de verplichte velden in te vullen.