Bouwgrond
€ 149.000

Meerlaarstraat , 2430 Laakdal
    • delen

Omschrijving Ref.: 7585999

Bouwgrond te koop in Laakdal!


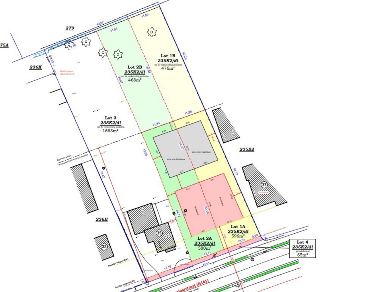
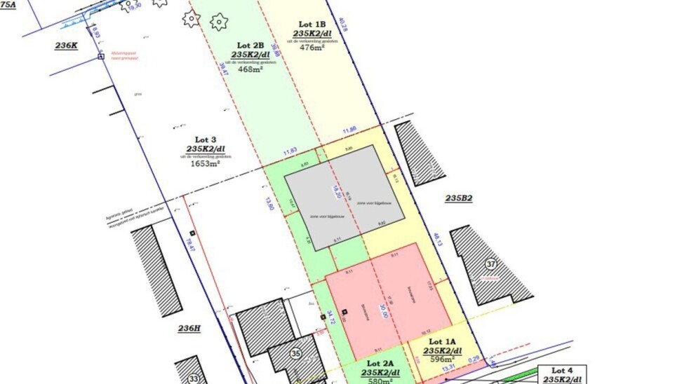
Mooie bouwgrond voor halfopen bebouwing . (lot 1A+1B: 1072m²)
Landelijk gelegen te Laakdal. Een topverbinding met de E313 en scholen, winkels, openbaar vervoer zijn nabij. Het perceel beschikt over een noordgerichte tuin, heeft een straatbreedte van 13,31m en een diepte van ca. 88,41m. (Gvg, Wglkr, Ag, Gmo, Gvkr, Vv) Graag de bouwvoorschriften of meer informatie? immo@degroot-celen.be
“overstromingsgevoeligheid: P-score klasse A / G-score klasse A ”


Uw contact

Vragen over deze eigendom ref: 7585999
contact

Details van het pand

Financieel

Prijs
€ 149.000,00

Terrein

Grondoppervlakte
1.072,00 m²
Terreindiepte
88,41 m

Stedenbouw

Bestemming
Woongebied met landelijk karakter
Bouwvergunning
Nee
Verkavelingsvergunning
Ja
Voorkooprecht
Nee
Dagvaarding
Nee - geen rechterlijke herstelmaatregel of bestuurlijke maatregel opgelegd
O-peil
Niet gelegen in een overstromingsgevoelig gebied
P-score
A
Vonnissen
Nee
Servitude
Nee

Meer info over deze eigendom

Bedankt voor je bericht, we contacteren je zo spoedig mogelijk.
Er was een probleem bij het versturen van het formulier, gelieve opnieuw te proberen.
(*) Gelieve de verplichte velden in te vullen.